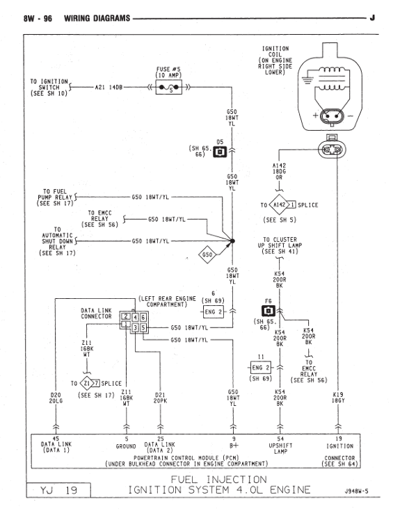
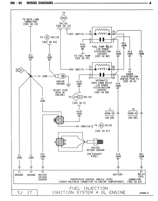
I am a pretty new Jeep owner here looking for some assistance with wiring connectors. I bought a 94 Wrangler with a 4.0L with an AX15 manual transmission, no AC, after I did some digging I found that the vehicle originally had the 4 cylinder engine so at some point a previous owner swapped the motor in a typical bubba fashioned install. The first issue I tackled was the motor would not stop running when I turned the key off. I realized that they had bypassed relays and wired constant voltage to the computer not allowing the PCM to recognize when the key was turned off. After more digging, I found main harness connectors cut, it was a real mess. I also noticed they installed an external voltage regulator which I assume must have been due to either a PCM voltage regulator internally failed or just a hack job of an installation. I replaced every capacitor in the PCM with a good solder job. After trying to fix the harness I decided to buy an uncut original harness from Dead Jeep since the job was pretty massive to fix the old one.
So I am at the point of connecting everything up, I have pretty much every main connector hooked up such as the MAP, TPS, crank position, cam position, coolant temp sensor & temp to gauge, o2, oil pressure, intake air sensor, idle air controller, distributor, coil. I am left with only a few connectors that are not connected, and want to ensure I have them correct.
I think two might be for if I had AC installed, the AC high pressure switch and a single blue/black larger gauge wire that might go to the AC compressor. Pictures below:
And then I have one other connector that splits off the loom going into the PDC. There is a connector it fits to right under the PDC that seems to head toward the transmission, although I think I have the neutral/park switch connected and the speed sensor connected already. Shown in pics below the second pictures wires are one black and another light blue or light green with a white stripe:
Below are all the connectors with a wider shot:
I certainly appreciate any assistance anyone can provide. I am hoping to get this rig up and running for my daughter as this is her first Jeep ever, she is excited to be a YJ owner! I apologize if this is a repeat ask, I figured with my wiring situation it might not be but who knows.
So I am at the point of connecting everything up, I have pretty much every main connector hooked up such as the MAP, TPS, crank position, cam position, coolant temp sensor & temp to gauge, o2, oil pressure, intake air sensor, idle air controller, distributor, coil. I am left with only a few connectors that are not connected, and want to ensure I have them correct.
I think two might be for if I had AC installed, the AC high pressure switch and a single blue/black larger gauge wire that might go to the AC compressor. Pictures below:
And then I have one other connector that splits off the loom going into the PDC. There is a connector it fits to right under the PDC that seems to head toward the transmission, although I think I have the neutral/park switch connected and the speed sensor connected already. Shown in pics below the second pictures wires are one black and another light blue or light green with a white stripe:
Below are all the connectors with a wider shot:
I certainly appreciate any assistance anyone can provide. I am hoping to get this rig up and running for my daughter as this is her first Jeep ever, she is excited to be a YJ owner! I apologize if this is a repeat ask, I figured with my wiring situation it might not be but who knows.




